Anfertigung von Getriebeeingangswelle und Motorhülse

  • Mittelhesse
  • Mittelhesses Avatar
  • Pro Boarder
  • Pro Boarder
  • Beiträge: 733
  • Dank erhalten: 1054
15 Aug 2022 17:34 - 15 Aug 2022 17:59 #233067 von Mittelhesse
Anfertigung von Getriebeeingangswelle und Motorhülse
na dann wollen wir mal ans Eingemachte, Butter bei die Fische :woohoo:

nach Rücksprache mit dem Verzahner ändern wir das Material von 34CrNiMo6 auf 18CrNi8
da es noch besser als dieses geeignet ist, normalerweise verwendete man für so kleine Wellen und Hülsen 16MnCr5 oder 21MnCr5, die haben aber bei weitem nicht die Kernzähigkeit
des 18CrNi8



und so sieht ein Meßprotokoll der Schrägverzahnung aus (Musterwelle zum Erfasse der Verzahnung)




Gruß vom Schwertschmied
Stefan
Model 3 (Nidhöggr) schwarz LR AWD seit 14.02.19
Fuhrparkmanager für:
Renault: ZOE und Twizy
Opel: Vivaro-E (Kastenwagen 75kWh mittlerer Radstand)
Citroën: Berlingo electric Kastenwagen
Letzte Änderung: 15 Aug 2022 17:59 von Mittelhesse.
Folgende Benutzer bedankten sich: Akku61, maikt, Pfälzer68, Ulli-et-Tom, Kerstin66, AndiEcker, Stolte, HollandHannes, green_fox, Kangoo, El_Grobo, JPB, BenZE

Bitte Anmelden oder Registrieren um der Konversation beizutreten.

  • Mittelhesse
  • Mittelhesses Avatar
  • Pro Boarder
  • Pro Boarder
  • Beiträge: 733
  • Dank erhalten: 1054
16 Aug 2022 15:02 #233104 von Mittelhesse
Anfertigung von Getriebeeingangswelle und Motorhülse

Mittelhesse schrieb:
nach Rücksprache mit dem Verzahner ändern wir das Material von 34CrNiMo6 auf 18CrNi8


So Material ist in mehr als ausreichender Menge bestellt, sch... ist das teuer geworden, Lieferung soll laut Angebot in 8-10 Tagen erfolgen. Leider will das momentan nichts heißen,
ich hoffe es trifft in diesem Zeitrahmen ein.

Gruß vom Schwertschmied
Stefan
Model 3 (Nidhöggr) schwarz LR AWD seit 14.02.19
Fuhrparkmanager für:
Renault: ZOE und Twizy
Opel: Vivaro-E (Kastenwagen 75kWh mittlerer Radstand)
Citroën: Berlingo electric Kastenwagen
Folgende Benutzer bedankten sich: Rebound, Ulli-et-Tom, Stolte

Bitte Anmelden oder Registrieren um der Konversation beizutreten.

  • Mittelhesse
  • Mittelhesses Avatar
  • Pro Boarder
  • Pro Boarder
  • Beiträge: 733
  • Dank erhalten: 1054
16 Aug 2022 16:24 #233107 von Mittelhesse
Anfertigung von Getriebeeingangswelle und Motorhülse

GeölterBlitz schrieb:
Wenn die bis zum Workshop im April fertig sind,

knutsche ich Dich dreimal, statt A...Tritt !!!......:whistle: :mrgreen: :facepalm:


hat alles ein wenig gedauert, aber für nächsten April kannst du bei Tom mit Sicherheit einen Termin buchen :evil:

Gruß vom Schwertschmied
Stefan
Model 3 (Nidhöggr) schwarz LR AWD seit 14.02.19
Fuhrparkmanager für:
Renault: ZOE und Twizy
Opel: Vivaro-E (Kastenwagen 75kWh mittlerer Radstand)
Citroën: Berlingo electric Kastenwagen

Bitte Anmelden oder Registrieren um der Konversation beizutreten.

  • Pfälzer68
  • Pfälzer68s Avatar
  • Platinum Boarder
  • Platinum Boarder
  • Beiträge: 8592
  • Dank erhalten: 5213
16 Aug 2022 18:46 #233118 von Pfälzer68
Anfertigung von Getriebeeingangswelle und Motorhülse

Mittelhesse schrieb: ...Material ist in mehr als ausreichender Menge bestellt, sch... ist das teuer geworden...


Egal... immer noch besser als den Originalkrempel zu kaufen... wenn überhaupt...

Anhänge:
Folgende Benutzer bedankten sich: Mittelhesse

Bitte Anmelden oder Registrieren um der Konversation beizutreten.

  • Mittelhesse
  • Mittelhesses Avatar
  • Pro Boarder
  • Pro Boarder
  • Beiträge: 733
  • Dank erhalten: 1054
19 Sep 2022 20:13 - 19 Sep 2022 20:15 #234556 von Mittelhesse
Anfertigung von Getriebeeingangswelle und Motorhülse
Hülsen gehen jetzt zum Verzahnung räumen


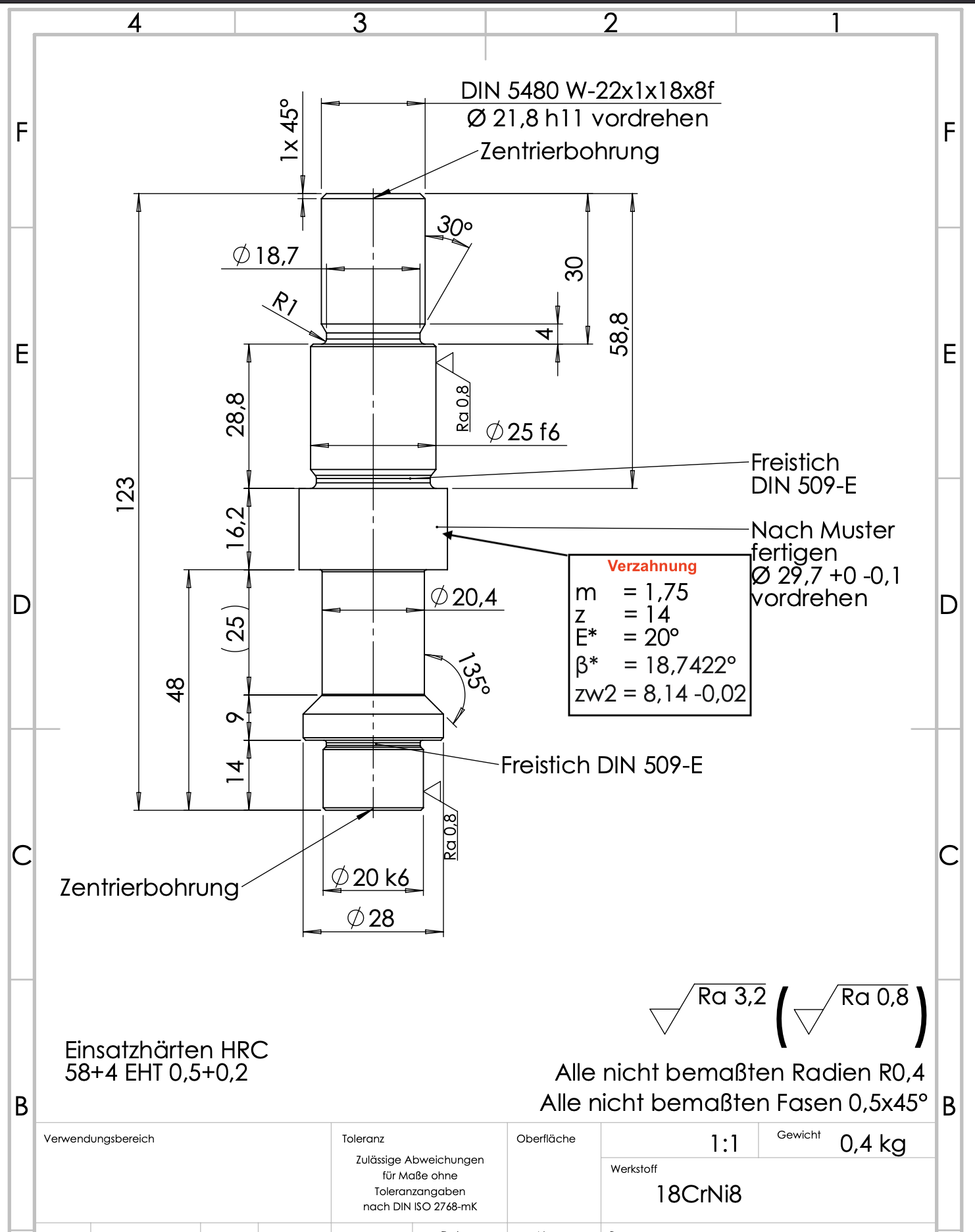
nicht irritieren lassen, die Verzahnung lautet richtig DIN 5480 N22x1x20x9H Zeichnungen sind schon
angepasst, und es ist auch richtig bestellt.

Gruß vom Schwertschmied
Stefan
Model 3 (Nidhöggr) schwarz LR AWD seit 14.02.19
Fuhrparkmanager für:
Renault: ZOE und Twizy
Opel: Vivaro-E (Kastenwagen 75kWh mittlerer Radstand)
Citroën: Berlingo electric Kastenwagen
Anhänge:
Letzte Änderung: 19 Sep 2022 20:15 von Mittelhesse.
Folgende Benutzer bedankten sich: weiss60, maikt, Ulli-et-Tom, Kerstin66, AndiEcker, Stolte, green_fox, JPB, Martinez

Bitte Anmelden oder Registrieren um der Konversation beizutreten.

  • stromkreisparadies
  • stromkreisparadiess Avatar
  • Platinum Boarder
  • Platinum Boarder
  • Markus
  • Beiträge: 3752
  • Dank erhalten: 1026
19 Sep 2022 20:19 #234557 von stromkreisparadies
Anfertigung von Getriebeeingangswelle und Motorhülse
ich hab mal ne technische Frage:

in der Zeichnung steht 35,3 vordrehen. Wie geht denn die Fertigung?
vordrehen, räumen, härten und dann auf Endmaß schleifen? Warum nicht gleich außen fertig bearbeiten? Weil es sich beim härten verziehen kann?

Grüße von Markus

-> Twizy Technic, LED Tagfahrlicht, LED Innenbeleuchtung, Sitzheizung, Radio mit Freisprecheinrichtung
-> Brammo Empulse R
-> 2x Elektrofahrrad (Stadt-Trekking und Downhill für den Wald)
Folgende Benutzer bedankten sich: Mittelhesse, Berthold

Bitte Anmelden oder Registrieren um der Konversation beizutreten.

  • Mittelhesse
  • Mittelhesses Avatar
  • Pro Boarder
  • Pro Boarder
  • Beiträge: 733
  • Dank erhalten: 1054
19 Sep 2022 20:31 - 19 Sep 2022 20:38 #234559 von Mittelhesse
Anfertigung von Getriebeeingangswelle und Motorhülse

stromkreisparadies schrieb: vordrehen, räumen, härten und dann auf Endmaß schleifen? Warum nicht gleich außen fertig bearbeiten? Weil es sich beim härten verziehen kann?


genau so ist die Reihenfolge und aus den genannten Gründen, es soll ja hinterher sauber in's Zusatzlager passen.

Die Bohrung für die Welle hat ebenfalls 0,3mm Aufmaß, so das wir sie 100prozentig rund bekommen nach dem härten.
Außen und innen wird hart gedreht, Videos findest du mit Sicherheit bei YouTube, kann aber gerne auch mal eins raus suchen.

Hatte hier schon mal ein Video verlinkt www.twizy-forum.de/werkstatt-twizy/87266...ger-workshop-in-herford?start=420#233074

Gruß vom Schwertschmied
Stefan
Model 3 (Nidhöggr) schwarz LR AWD seit 14.02.19
Fuhrparkmanager für:
Renault: ZOE und Twizy
Opel: Vivaro-E (Kastenwagen 75kWh mittlerer Radstand)
Citroën: Berlingo electric Kastenwagen
Letzte Änderung: 19 Sep 2022 20:38 von Mittelhesse.
Folgende Benutzer bedankten sich: stromkreisparadies, weiss60, dingdong, maikt, AndiEcker, green_fox, JPB, chevyhorst

Bitte Anmelden oder Registrieren um der Konversation beizutreten.

  • Mittelhesse
  • Mittelhesses Avatar
  • Pro Boarder
  • Pro Boarder
  • Beiträge: 733
  • Dank erhalten: 1054
08 Okt 2022 19:14 - 08 Okt 2022 19:15 #235098 von Mittelhesse
Anfertigung von Getriebeeingangswelle und Motorhülse


die Motorhülsen sind vom Verzahnung räumen zurück gekommen und befinden sich bereits beim Härten.




Bohrung für die Motorwelle noch mit 0,3mm Aufmaß im Durchmesser,
diese Seite wird auf den Motor geschrumpft.


Die Verzahnung sieht sehr gut aus :cheer:

und keine Angst, es wird genug für alle geben


Gruß vom Schwertschmied
Stefan
Model 3 (Nidhöggr) schwarz LR AWD seit 14.02.19
Fuhrparkmanager für:
Renault: ZOE und Twizy
Opel: Vivaro-E (Kastenwagen 75kWh mittlerer Radstand)
Citroën: Berlingo electric Kastenwagen
Letzte Änderung: 08 Okt 2022 19:15 von Mittelhesse.
Folgende Benutzer bedankten sich: TwizyChrisy, Akku61, Rebound, weiss60, dingdong, maikt, villadsen, Goldbacher, Ulli-et-Tom, GeraldR, AndiEcker, Stolte, green_fox, Kangoo, Berthold, newbie, JPB, Performance GTS, Martinez, Wattsinn und 1 andere Leute haben sich zudem bedankt.

Bitte Anmelden oder Registrieren um der Konversation beizutreten.

  • Mittelhesse
  • Mittelhesses Avatar
  • Pro Boarder
  • Pro Boarder
  • Beiträge: 733
  • Dank erhalten: 1054
10 Okt 2022 20:02 #235198 von Mittelhesse
Anfertigung von Getriebeeingangswelle und Motorhülse
Nur die erste Seite bearbeitet und noch ohne Zähne, aber bei den Wellen zeigen sich erste Fortschritte B)


Gruß vom Schwertschmied
Stefan
Model 3 (Nidhöggr) schwarz LR AWD seit 14.02.19
Fuhrparkmanager für:
Renault: ZOE und Twizy
Opel: Vivaro-E (Kastenwagen 75kWh mittlerer Radstand)
Citroën: Berlingo electric Kastenwagen
Anhänge:
Folgende Benutzer bedankten sich: TwizyChrisy, Akku61, Rebound, dingdong, sunneraindler, Ulli-et-Tom, GeraldR, Kerstin66, AndiEcker, Stolte, green_fox, Kangoo, Essen68

Bitte Anmelden oder Registrieren um der Konversation beizutreten.

  • Ulli-et-Tom
  • Ulli-et-Toms Avatar
  • Autor
  • Platinum Boarder
  • Platinum Boarder
  • Beiträge: 2625
  • Dank erhalten: 1951
11 Okt 2022 20:09 - 11 Okt 2022 20:09 #235235 von Ulli-et-Tom
Anfertigung von Getriebeeingangswelle und Motorhülse
Leute, ihr seid MEGA !! :exclamation

gerade eben ist die 60zigste Reservierung eingegangen...

...ich glaube, ich muss wohl doch einen Studenten/in einstellen, wenn es los geht mit Pakete schnüren :woohoo:

Eins aber bitte noch mal eben für eine kleine Erleichterung meinerseits:
Wenn ihr reservieren möchtet, dann schreibt mir gleich eueren Namen und Adresse in die PN (nicht hier!) - es sei denn, ihr habt vor in den nächsten Monaten umzuziehen.
Darüber hinaus werden aber kurz vorher (sprich bei der Bezahlung) noch mal euere Adresse verifizieren. Dazu gibt es dann aber weitere Infos

LG Tom

Twizylino 08-2012 I ToM I OVMS V3 I V:145/70R13 I H:145/80R13 I Alu I TfL I Zusatzlager I 10,5kWh Akku
Twizy(Hummel) Cargo 08-2015 I ToM I OVMS V3 I V:145/70R13 I H:145/80R13 I Alu I TfLI Zusatzlager I 10,5kWh Akku

tcb-info[at]web.de

Threema: MJRBDTEE

RTT2022 Nr.18
RTT2025 Nr.?? (gab es Nummern?)
Letzte Änderung: 11 Okt 2022 20:09 von Ulli-et-Tom.
Folgende Benutzer bedankten sich: Mittelhesse, Kerstin66, Kangoo

Bitte Anmelden oder Registrieren um der Konversation beizutreten.

  • Essen68
  • Essen68s Avatar
  • Senior Boarder
  • Senior Boarder
  • Beiträge: 153
  • Dank erhalten: 69
11 Okt 2022 20:49 #235236 von Essen68
Anfertigung von Getriebeeingangswelle und Motorhülse
Hoffe es gibt später einen Workshop dazu.
Würde mich freuen.
Folgende Benutzer bedankten sich: Rebound, Mittelhesse

Bitte Anmelden oder Registrieren um der Konversation beizutreten.

  • Mittelhesse
  • Mittelhesses Avatar
  • Pro Boarder
  • Pro Boarder
  • Beiträge: 733
  • Dank erhalten: 1054
11 Okt 2022 21:17 #235237 von Mittelhesse
Anfertigung von Getriebeeingangswelle und Motorhülse

Essen68 schrieb: Hoffe es gibt später einen Workshop dazu.
Würde mich freuen.


Den ersten zum testen der Bauteile hoffentlich noch dieses Jahr :whistle:

Gruß vom Schwertschmied
Stefan
Model 3 (Nidhöggr) schwarz LR AWD seit 14.02.19
Fuhrparkmanager für:
Renault: ZOE und Twizy
Opel: Vivaro-E (Kastenwagen 75kWh mittlerer Radstand)
Citroën: Berlingo electric Kastenwagen
Folgende Benutzer bedankten sich: dingdong

Bitte Anmelden oder Registrieren um der Konversation beizutreten.

  • Mittelhesse
  • Mittelhesses Avatar
  • Pro Boarder
  • Pro Boarder
  • Beiträge: 733
  • Dank erhalten: 1054
26 Okt 2022 19:27 #235831 von Mittelhesse
Anfertigung von Getriebeeingangswelle und Motorhülse
So sehen die Getriebewellen aus, bevor sie zum verzahnen gehen.





Sie sollten morgen bei uns fertig bearbeitet sein, danach gehen sie noch mal
in die Endkontrolle und dann machen sie sich auf den Weg in's Ländle.

Nach einigem hin und her zwischen Tom, Holger und mir, haben wir uns dazu
entschlossen direkt bei uns im Werk neue Kugellager auf die Wellen zu pressen.
Alles andere wäre für mich auch nur eine halbe Sache, und sowas mag ich nicht.
Die Zusatzkosten dafür sind überschaubar, und rechtfertigen es nicht die alten Lager
noch mal zu verwenden.

Die zwei Kugellager pro Welle gehen auf's Haus :evil: , für euch wird's nicht teurer. :woohoo:
bedankt euch bei Tom und Holger B)

Gruß vom Schwertschmied
Stefan
Model 3 (Nidhöggr) schwarz LR AWD seit 14.02.19
Fuhrparkmanager für:
Renault: ZOE und Twizy
Opel: Vivaro-E (Kastenwagen 75kWh mittlerer Radstand)
Citroën: Berlingo electric Kastenwagen
Anhänge:
Folgende Benutzer bedankten sich: TwizyChrisy, Akku61, Rebound, weiss60, dingdong, sunneraindler, maikt, Pfälzer68, Ulli-et-Tom, Kerstin66, AndiEcker, green_fox, Kangoo, El_Grobo, JPB, Reiberdatschi, Performance GTS, miata

Bitte Anmelden oder Registrieren um der Konversation beizutreten.

  • TwizyChrisy
  • TwizyChrisys Avatar
  • 10k Boarder
  • 10k Boarder
  • Der Trend geht klar zum Zweittwizy äähhh....
  • Beiträge: 19771
  • Dank erhalten: 12019
26 Okt 2022 19:38 #235833 von TwizyChrisy
Anfertigung von Getriebeeingangswelle und Motorhülse

Mittelhesse schrieb: Die zwei Kugellager pro Welle gehen auf's Haus :evil: , für euch wird's nicht teurer. :woohoo:
bedankt euch bei Tom und Holger B)


geiler Schei...

DANKE

Sag mal, das Getriebezahnrad wird da dann aufgepresst?

Mehr Twizys, mehr Freude.
Folgende Benutzer bedankten sich: Mittelhesse

Bitte Anmelden oder Registrieren um der Konversation beizutreten.

  • Pfälzer68
  • Pfälzer68s Avatar
  • Platinum Boarder
  • Platinum Boarder
  • Beiträge: 8592
  • Dank erhalten: 5213
26 Okt 2022 19:40 #235834 von Pfälzer68
Anfertigung von Getriebeeingangswelle und Motorhülse

TwizyChrisy schrieb: Sag mal, das Getriebezahnrad wird da dann aufgepresst?


:)

Bitte Anmelden oder Registrieren um der Konversation beizutreten.

   Become a Patron